elevated spaces
Tree Deck Plans
Tree Deck Plans
Printable PDF plans for building a tree house or tree fort for kids—or an elevated tree deck for adults.
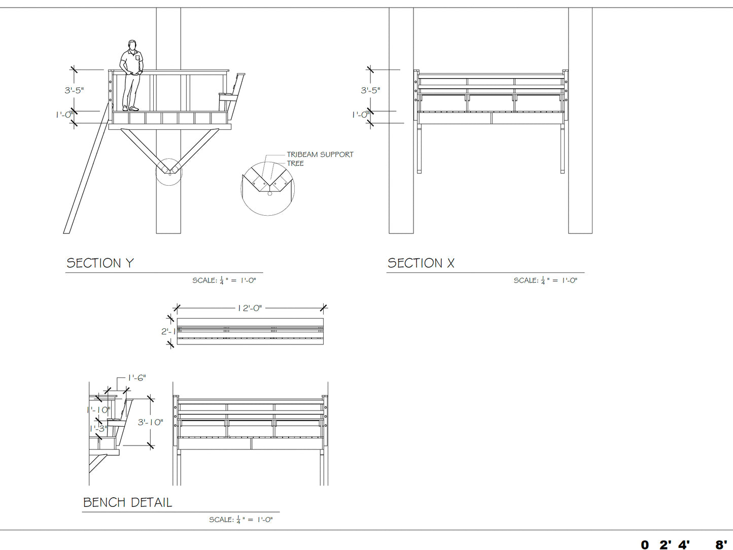
This platform is designed for construction using two trees, and the framework can be easily adapted to accommodate different sizes, depending on the distance between your trees. The plans can also be modified for use with just one tree or even three or more trees.
Please note that while the listing photos showcase elements of the design, they don't represent the build exactly. I’ve combined the best features from our various tree deck builds into a new design that will work for most trees and builders.
SIZE: 120 square feet. Footprint measuring at 10x12 ft.
COST: $3500 USD. Material choices and local pricing will vary the total build cost.
WHAT’S INCLUDED: Instantly available digital download includes printable PDF builder-ready blueprints, a materials list, notes on materials and build tips, a digital album of 150 photos and illustrations of the build process, and a bonus 3D Sketchup model.
SKETCHUP: An entry-level 3D design program that allows you to take precise measurements and examine the hidden layers of construction details. Use it to modify the design, or to familiarize yourself with the construction process digitally before building for real. Sketchup is available as an always-free web app, so there is no added cost.
Feel free to download plans to price materials, share them with builders, or to explore modifications. If they don't end up fitting your project, we're happy to offer a refund anytime.
© Elevated Spaces. For personal use only, commercial distribution is not allowed.
Couldn't load pickup availability













