elevated spaces
Modern Outhouse Plans
Modern Outhouse Plans
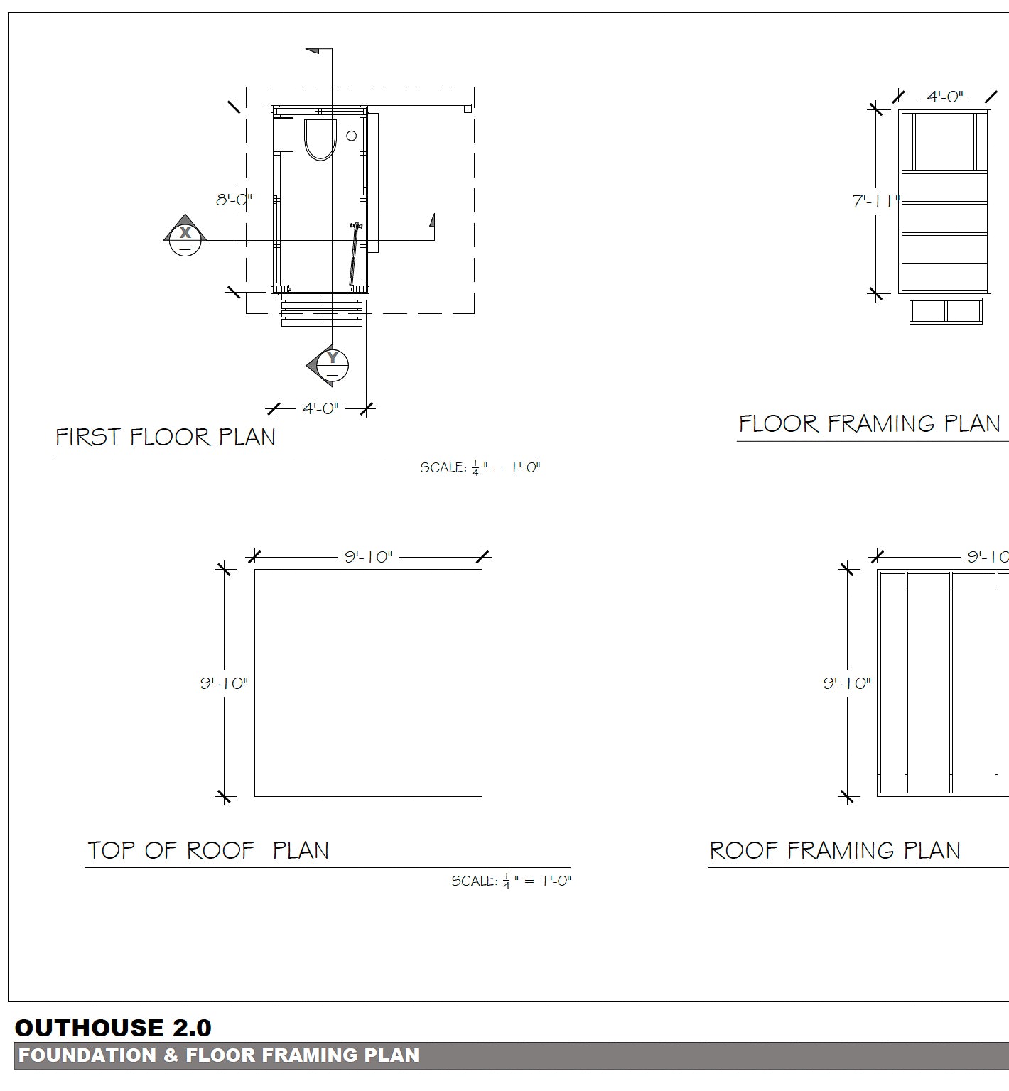
This printable PDF plan is for our second outhouse, designed to accommodate a conventional pit toilet, a composting toilet, or a traditional plumbed toilet with a water supply. The overhang can host a sink, and there’s also space for an outdoor shower, with recommendations for a reliable off-grid heater included in the plans.
This build prioritizes efficiency, low cost, and ease of construction for novice builders. Walls can be constructed using a single layer of siding or full sheets of plywood siding, reducing the number of necessary cuts, and both options are covered in the plans.
Alternative uses for this structure include a shed or playhouse. You can add a window for extra light and the overhang area can serve as storage or shelter for a potting or work bench.
SIZE: Enclosed area of 32 sq ft, with a footprint of 4x8 ft. The roof measures 10x10 ft, while the covered area totals 50 sq ft.
COST: $1800 USD. Material choices and local pricing will vary the total build cost.
WHAT’S INCLUDED: Instantly available digital download includes printable PDF builder-ready blueprints, a Step-by-Step illustrated build guide, materials list, a digital album of 200 photos and videos of the build process, and a bonus 3D Sketchup model.
SKETCHUP: An entry-level 3D design program that allows you to take precise measurements and examine the hidden layers of construction details. Use it to modify the design, or to familiarize yourself with the construction process digitally before building for real. Sketchup is available as an always-free web app, so there is no added cost.
Feel free to download plans to price materials, share them with builders, or to explore modifications. If they don't end up fitting your project, we're happy to offer a refund anytime.
© Elevated Spaces. For personal use only, commercial distribution is not allowed.
Couldn't load pickup availability
