elevated spaces
Live Work Garage
Live Work Garage
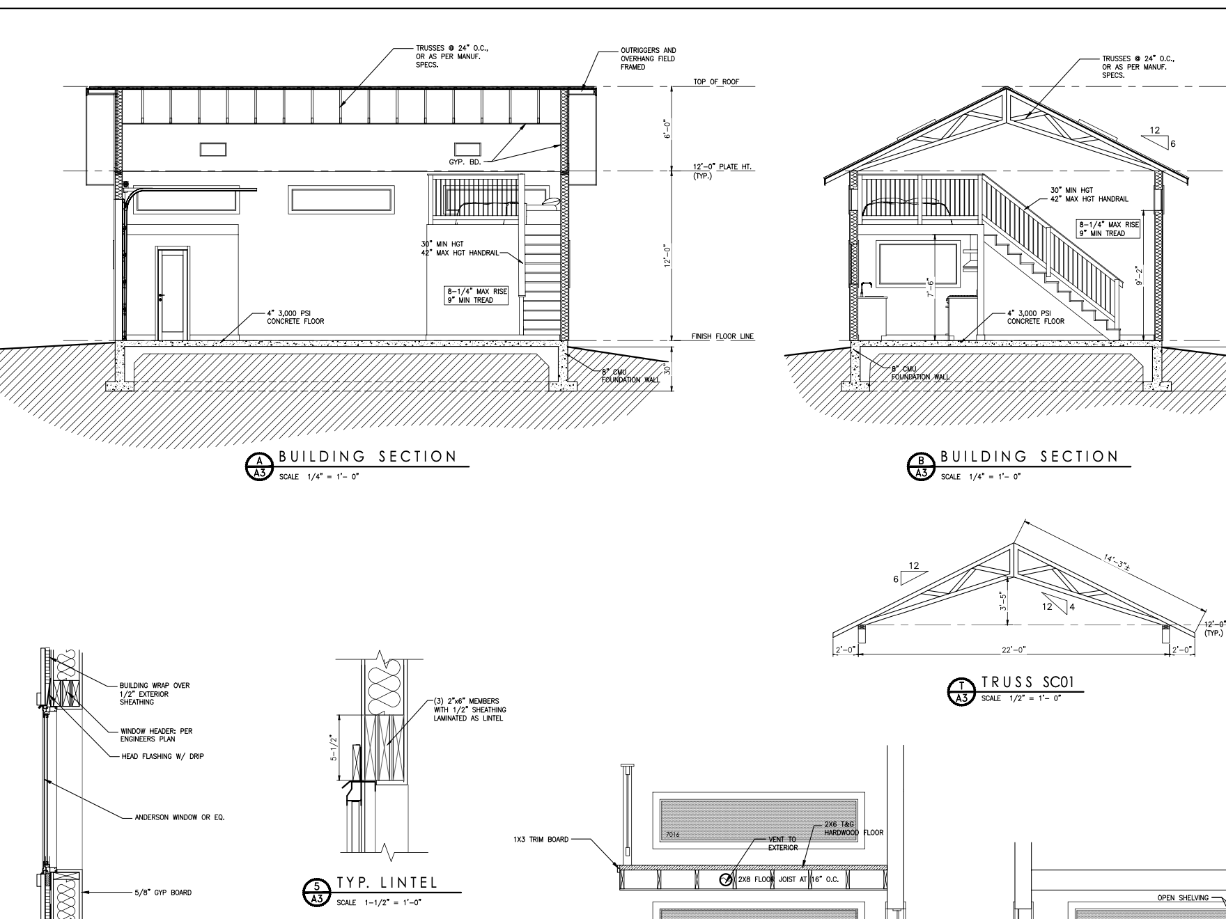
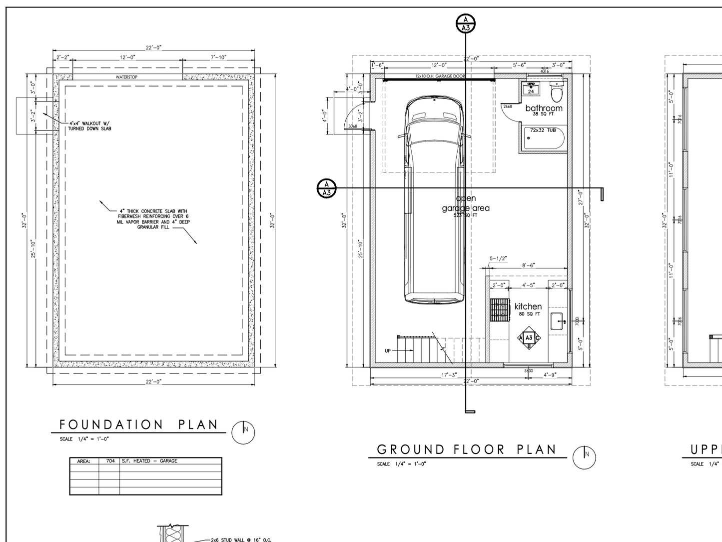
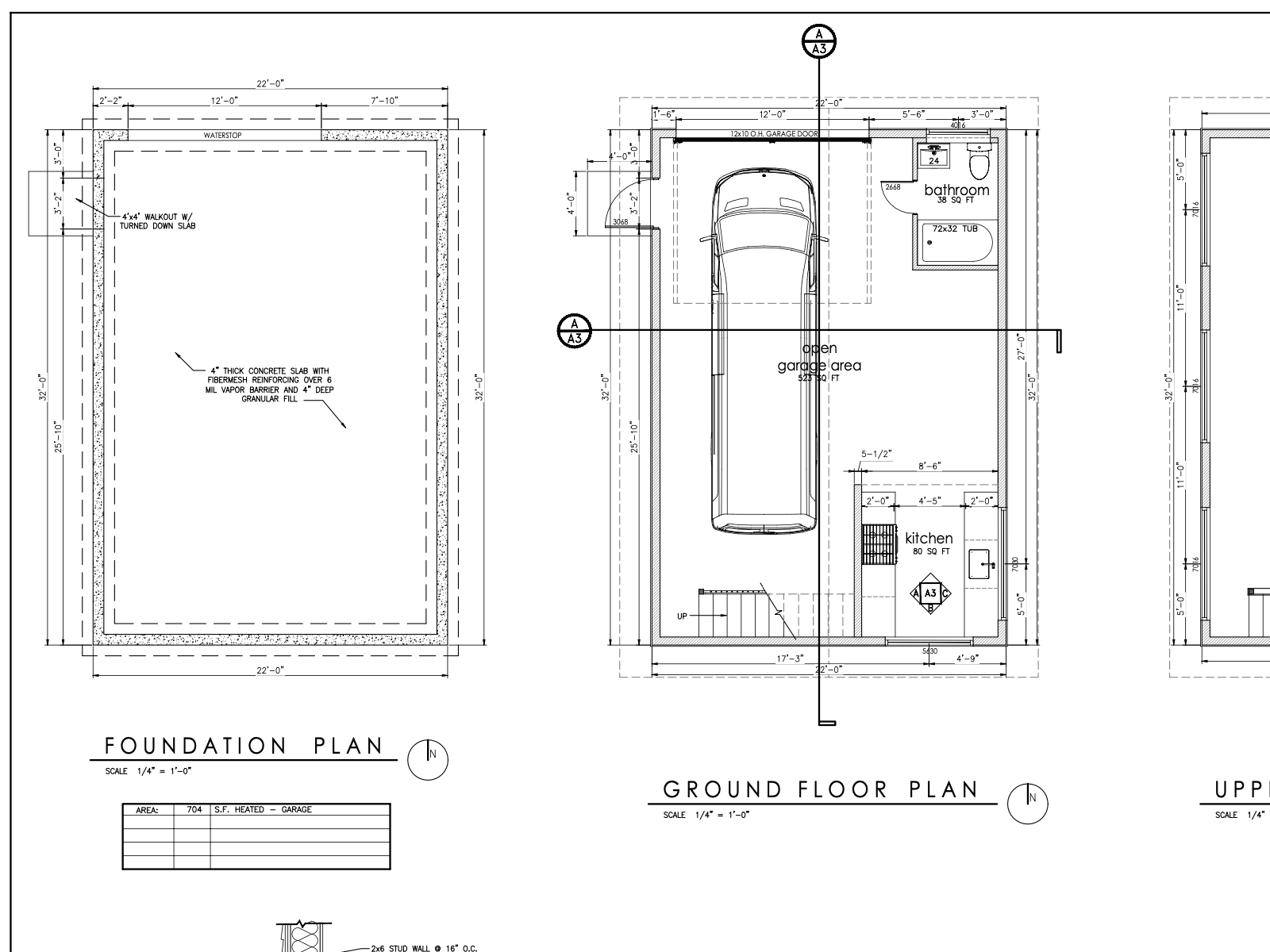
Printable PDF plans for a 704-square-foot live-work garage and shop space, featuring a kitchen, sleeping loft, and 1 bath. Hookups for laundry, shop sink, and space for additional sleeping loft. Enough room for the absolute largest Sprinter van, or two small cars. Designed to meet international and California residential building codes.
SIZE: 704 square feet, with a footprint of 22x32. The loft measures 8.5 x 10 ft. 10 x 12 garage door. Building height is 18 feet.
COST: The approximate cost of materials, excluding windows and doors, is about $40,000. Material choices and local pricing will vary the total build cost considerably.
WHAT’S INCLUDED: Instantly available digital download includes printable PDF builder-ready blueprints, a materials list, door and window schedule, electrical drawings, and plumbing drawings, and a guide on general building options and how you might approach this project. 3D SketchUp model and editable .dwg files also included.
SKETCHUP: An entry-level 3D design program that allows you to take precise measurements and examine the hidden layers of construction details. Use it to modify the design, or to familiarize yourself with the construction process digitally before building for real. Sketchup is available as an always-free web app, so there is no added cost.
Feel free to download plans to price materials, share them with builders, or to explore modifications. If they don't end up fitting your project, we're happy to offer a refund anytime.
© Elevated Spaces. For personal use only, commercial distribution is not allowed.
Couldn't load pickup availability
