elevated spaces
Saltbox Cabin Plans
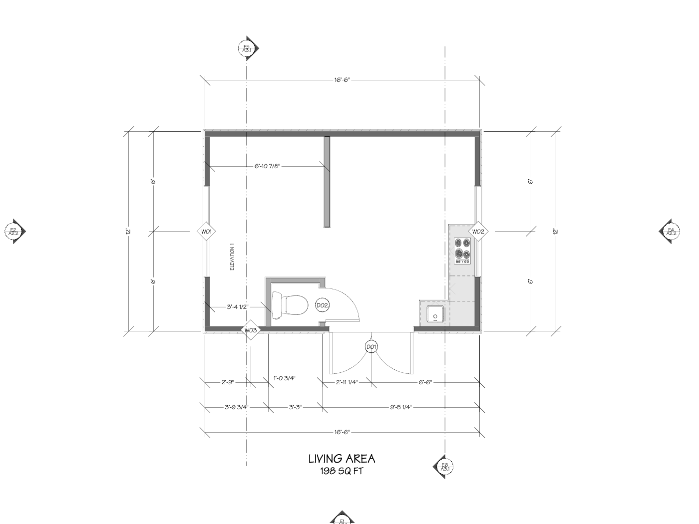
Saltbox Cabin Plans
This Dwell-featured simple cabin showcases exposed framing and post and beam construction. Replicate it, or a version of it, with this printable PDF plan and fully illustrated build guide. Cabin features a kitchen, one bed, and one bath and is just under 200 square feet, meaning it won't require a permit in many areas. The structure can also be used as an Accessory Dwelling Unit, office, or an exceedingly nice utility shed.
Check out a video of the build here.
SIZE: 198 square feet, with a footprint of 12x16.5 ft.
COST: The approximate cost of materials, excluding windows and doors, is about $20,000. Material choices and local pricing will vary the total build cost considerably.
WHAT’S INCLUDED: Instantly available digital download includes 100 page step-by-step illustrated build guide, printable builder-ready blueprints, a materials list, door and window schedule, slab and pier foundation plans, electrical and plumbing drawings, 1000+ construction photos and videos, and a bonus 3D Sketchup model.
SKETCHUP: An entry-level 3D design program that allows you to take precise measurements and examine the hidden layers of construction details. Use it to modify the design, or to familiarize yourself with the construction process digitally before building for real. Sketchup is available as an always-free web app, so there is no added cost.
Feel free to download plans to price materials, share them with builders, or to explore modifications. If they don't end up fitting your project, we're happy to offer a refund anytime.
© Elevated Spaces. For personal use only, commercial distribution is not allowed.
Couldn't load pickup availability




















