elevated spaces
Redwood Cabin Plans 2 Bedroom
Redwood Cabin Plans 2 Bedroom
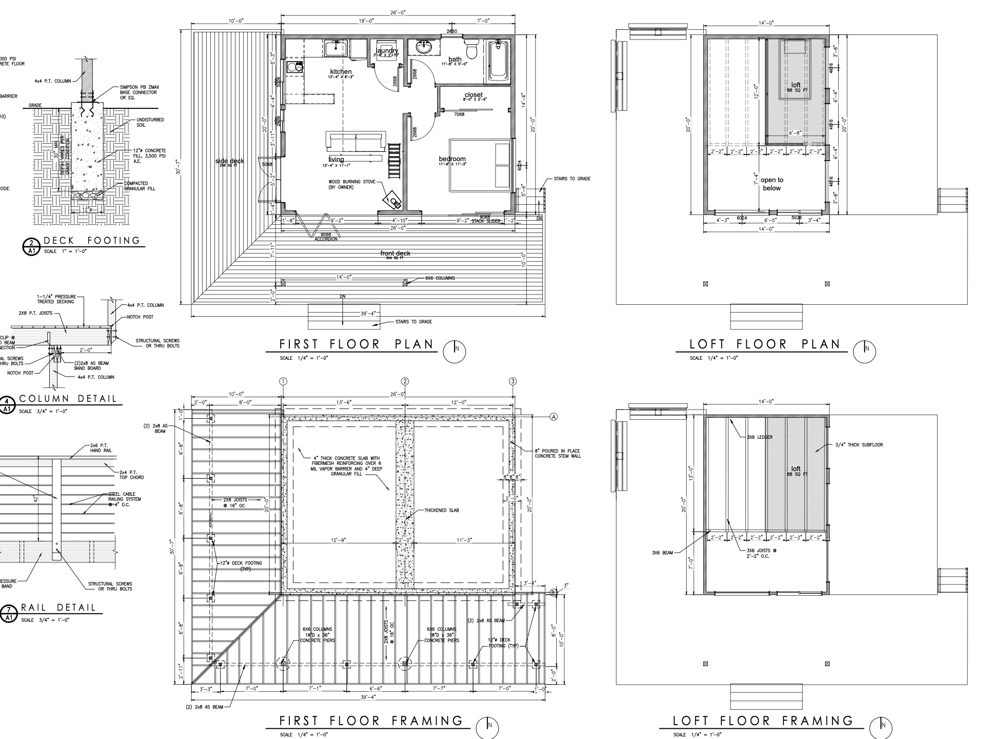
This printable PDF plan is for our 615-square-foot cabin, featuring a full kitchen, two beds, and one bath. The home features a sleeping loft, full-height ceilings, open timbers, and large picture window. Plans comply with international and California residential building codes.
Check out a video of our 1 bedroom build here.
SIZE: 615 square feet total living space with a footprint of 20x26 ft. The loft measures 7.5 x 12.5 ft, and the bath is 66 sq ft. An optional deck adds 480 sq ft of outdoor space.
COST: The approximate cost of materials, excluding windows and doors, is about $45,000. Material choices and local pricing will vary the total build cost considerably.
WHAT’S INCLUDED: Instantly available digital download includes printable PDF builder-ready blueprints, mirrored versions of the plans, a materials list, door and window schedule, slab and pier foundation plans, electrical drawings, and plumbing drawings, editable CAD files, and editable SketchUp files. Bonus: 600+ construction photos and videos of the 1 bed Redwood Cabin that inspired this 2 bed design.
Photos from @deepcovesprings on Instagram.
Feel free to download plans to price materials, share them with builders, or to explore modifications. If they don't end up fitting your project, we're happy to offer a refund anytime.
© Elevated Spaces. For personal use only, commercial distribution is not allowed.
Couldn't load pickup availability
